和美リゾートVILLA
- LDKは吹抜のスキップフロアの間取り
- 大型シネマスクリーンとプロジェクター有り
- 天候を気にせずBBQが楽しめる眺めの良いインナーデッキ
- リビングから遠く山々の美しい眺め
※ 図面と現況が異なる場合には現況を優先いたします。
物件概要
- 物件名
- 和美リゾートヴィラ
- 物件種別
- シーズン貸(5~10月の6ヶ月間)
- 物件種目
- 戸建て2棟
- 賃料
- 3,000,000円(敷金:500,000円・礼金:なし)
- 家賃保証
- 加入要 Jリース株式会社
- その他一時金
- 退去時クリーニング費用 80,000円
- 所在地
- 群馬県甘楽郡下仁田町大字西野牧字和美沢12154番165
南軽井沢和美リゾート別荘地3-16区画 - 交通
- 『碓氷軽井沢IC』より およそ2.6km 車で6分
『JR軽井沢駅』より およそ7.3km 車で18分 - 更新料
- 1ヶ月
- 使用部分面積
- 133m²
- デッキ
- 南向き 約18m²
- 建物構造
- 木造
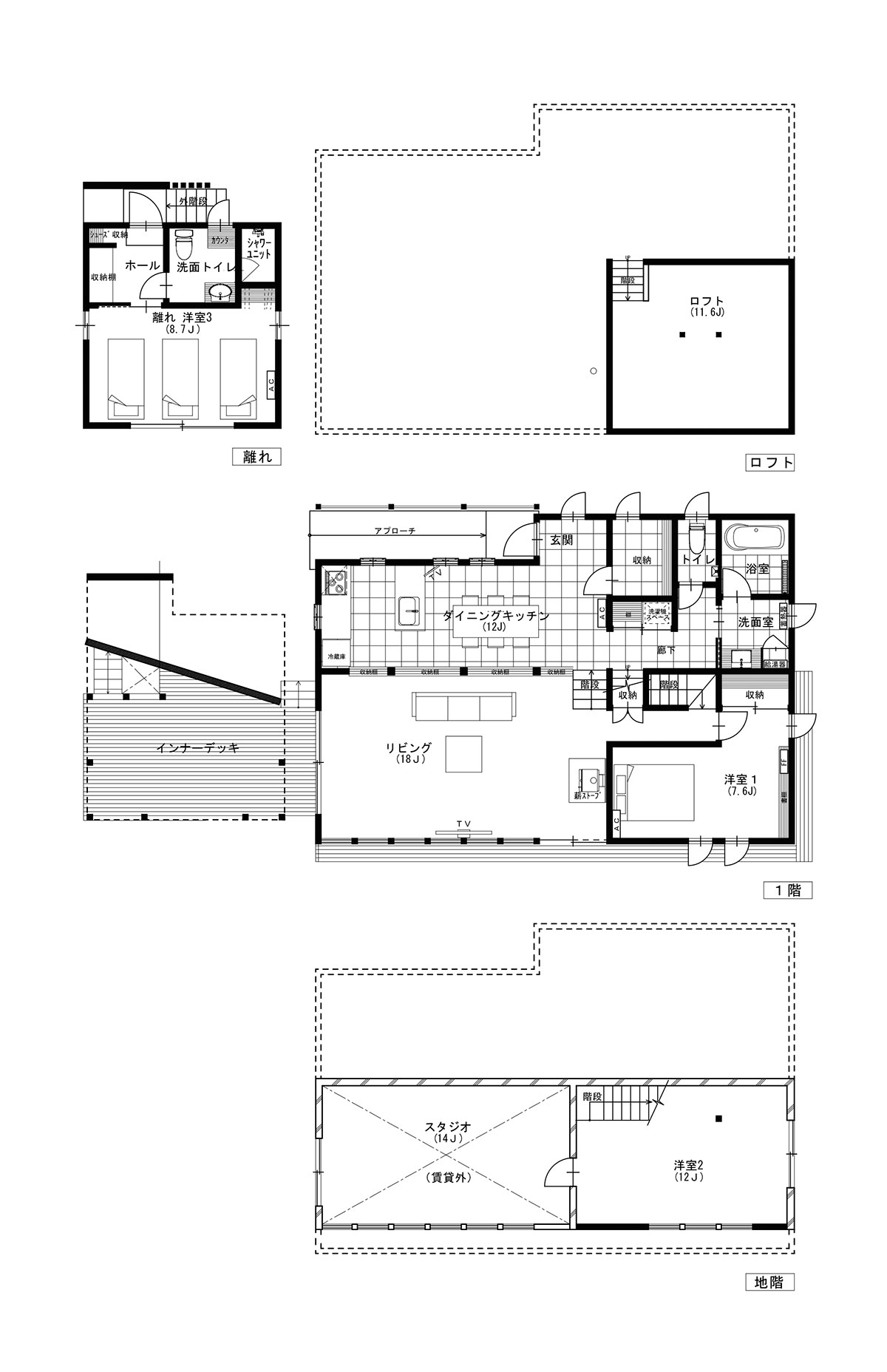
- 間取り
- 2LDK+ロフト+離れ1RM+水廻り
- 築年月
- 2010年12月
- 駐車場
- 有(4~5台) 月額は賃料に含まれる
- 入居時期
- 即時
- 取引態様
- 貸主
- 設備
-
飲用水:私営水道(賃料に含む) / 電気:東京電力
給湯器:灯油式 / 汚水・雑排水:合併浄化槽
浴室:床暖房付 / エアコン:LDK・洋室1・離れ洋室3
薪ストーブ:LDK(30J) / 床暖房:LDK・洋室1・洋室2・洗面室・ 浴室・トイレ / システムキッチン:IHコンロ
リビング:大型シネマスクリーンとプロジェクター装備
- 備考
-
3LDK+ロフトの間取り LDK:30帖/洋室1:7.6帖/洋室2:12帖
ロフト:11.6帖/離れ洋室:8.7帖
インナーデッキ/洗面・トイレ2ヵ所/玄関クローゼット/収納スペース
浴室:1坪サイズ・床暖房付き/離れ:シャワーブース0812
トイレ:温水洗浄便座
眺望良好・陽当たり良好/地階:スタジオは賃貸外






















